Our
Concept
Event
イベント
開催前
建築現場ではたらくくるま集合!!住宅フェア
6月6日(土)~6月21日(日)
イベント
開催中
4棟同時見学会
5月9日(土)~5月31日(日)
イベント
開催中
【GX志向型住宅】補助金相談会
5月18日(月)~5月31日(日)
イベント
開催中
【高性能×自由設計】平屋相談会
5月18日(月)~5月31日(日)
イベント
開催中
【高気密高断熱】性能体感会
5月18日(月)~5月31日(日)
イベント
開催中
福井|土地探し相談会
5月18日(月)~5月31日(日)
キャンペーン
開催中
【リトル・ママフェスタ来場者限定!】住まいの体感ランド来場予約
5月16日(土)~7月31日(金)
キャンペーン
開催中
【リトル・ママフェスタ来場者限定!】家の森展示場来場予約
5月16日(土)~7月31日(金)
Model
House
夏涼しくて、冬暖かい。
1年中快適な暮らしを体感できる
モデルハウス・ショールーム
Lineup
Ecosumaは以下の高性能仕様が
全棟標準で含まれています。
ZEH
太陽光発電標準搭載
(5.44kw)
トリプルガラス
樹脂サッシ
耐震等級3
エコキュート
オール電化
制震ダンパー
気密測定
自由設計
60年保証サービス
同時給排
レンジフード
HEAT20
G2
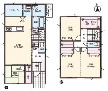
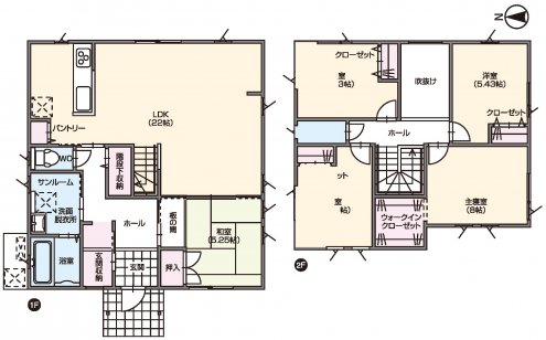
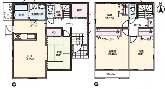
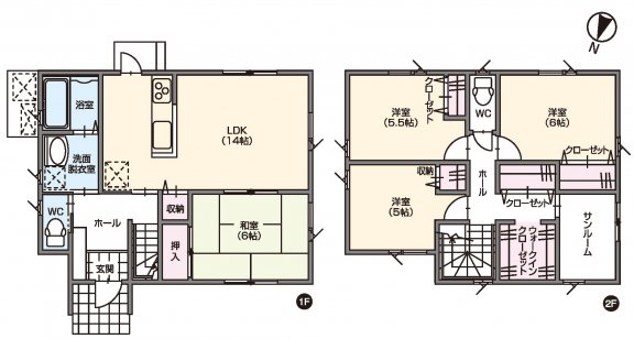
Gallery
Tags
Corporate
Message
『家』は家族の笑顔が集まるところです。
お子様の笑い声や、奥様のお料理に人が集まる。
今日一日にあったことを話しながら自然と笑顔が生まれる。
日々の疲れを癒しながら明日への力が生まれる。
たまには夫婦でゆっくりグラスを傾けながら会話ができる。
そんな日常の生活の中で生まれる、ささやかな幸せをしっかりと見つめていただく為に私たちができること。
快適な住まいゆとりある暮らしを考え、つくり続ける。
さまざまな暮らし方にあわせて、
一緒に考えさせていただきます。
地域の皆様の笑顔が少しでも増えるように、
これからも社員一丸となって、努力を続けて参ります。
地域密着
100年企業
100年企業を目指して
for a company for 100 years
企業とは、お客様を幸せにするために存在します。それにより売上へとつながり、社員にも還元されます。
逆に、社員が幸せでなければ、お客様を幸せにすることはできません。
会社が社員を幸せにし、社員がお客様を幸せに。そのパワーが大きくなって、多くの人の幸せにつながると考えます。
私たちは、お客様の幸せ、写真の幸せ、すべての人の幸せを実現する企業を目指しています。
# 体感ショールーム
福井県最大級の家づくりに役立つ情報が全て詰まった地域密着型の住宅情報館です。
0776-24-3540
〒910-0063 福井市灯明寺1丁目1412-1
# モデルハウス
福井県最大級の家づくりに役立つ情報が全て詰まったハウスメーカー以上の性能を月々5万円台で叶える専門店です。
0776-43-6890
〒910-2147 福井県福井市成願寺町10-17
YKK AP株式会社主催のハウス・オブ・ザ・高断熱窓において、北陸にて高断熱樹脂窓のAPWの採用数が最も多い企業として選ばれました!
エコスマでは、高性能で世界トップクラスの断熱性能である「APW430」を標準採用しています。
Low-E膜と呼ばれる特殊⾦属膜をガラスにコーティングした「低放射ガラス」を室内側と室外側にダブルで⽤いたトリプルガラスは⽇射を遮るとともに、暖房熱の透過を抑え、冷暖房効果を⾼める特徴を持っています。
フレームは熱の伝わりにくい樹脂素材を採⽤し、室内の暖かさを逃がさず、室外の冷気を室内に伝えにくくします。
家の中で最も弱い部分とされている窓を高性能なものを取り入れて、さらに高気密高断熱にもこだわるエコスマは、冬でも暖かく夏も涼しいお家が実現できます。
【経産省戸建ZEH】ネット・ゼロ・エネルギー・ハウス実証事業において、最高等級の6つ星評価を取得しました!
エコスマのZEH率は100%で、ビルダー評価最高の6つ星を取得しています。6つ星を取得しているZEHビルダー登録しているハウスメーカーや工務店は全国でわずか5%の割合です。
「ZEH」とは、Net Zero Energy House(ネット・ゼロ・エネルギー・ハウス)の略語です。建物の断熱性能を高めて、高効率な設備を導入することによって消費するエネルギーを少なくすることで「省エネ」を実現するとともに、太陽光発電などの再生可能エネルギーを創り出す「創エネ」によって、エネルギー収支が正味ゼロになることを目指した住宅のことをいいます。
ZEHでの生活では、「快適性の向上」「光熱費の削減」「災害時も安心」「健康的な暮らし」などのメリットをうけることができます。
「ハウス・オブ・ザ・イヤー・イン・エナジー2023」を受賞したことで、タキナミは10年連続受賞となりました!
「ハウス・オブ・ザ・イヤー・イン・エナジー」表彰制度は、建物躯体と設備機器をセットとして捉え、トータルとしての省エネルギーやCO2削減等へ貢献する優れた住宅を表彰する制度です。
タキナミではこれまで標準で太陽光搭載のZEH住宅をはじめとする、高気密・高断熱にこだわった省エネルギー住宅への取り組みを進めてきました。
車と同じく、家も燃費の良し悪しがあります。新築住宅でも電気代がかかってしまうお家はあります。なぜ同じ新築でもこんなにもかかる電気代に差が出てくるのか。その秘密を私たちはお伝えしております。
これからも健康で快適な質の高い住宅をご提供できるように日々の努力を重ねてまいります。