50件のプランが見つかりました。
Rank1
32
坪
白を基調とした洋風な外観が目を引く住まい
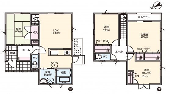
Rank2
27
坪
住宅街に建つ北欧デザインの広々間口の家
Rank3
30
坪
家族全員分の収納ができるウォークインクローゼットのある住まい
Rank4
31
坪
広々とした主寝室が特徴的な住まい
Rank5
36
坪
リビング階段で家族のコミュニケーションが増える住まい
Rank6
34
坪
バントリーとウォークインクローゼットのある収納力抜群の住まい
Rank7
34
坪
広々LDKとリビング階段が特徴の4人家族向けの住まい
Rank8
35
坪
収納を多く配置した4人家族向けの住まい
Rank9
40
坪
余裕のある個室で趣味時間を楽しむ住まい
Rank10
30
坪
広々としたLDKが特徴のスタンダードな住まい